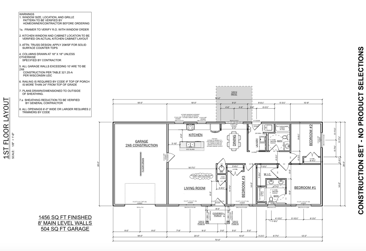
Welcome to Oakwood Oasis, a delightful 3-bedroom, one-story home designed for comfort and convenience. As you enter, you are greeted by a spacious living room that seamlessly flows into a large, open concept kitchen and dining area, creating an inviting space perfect for family gatherings and entertaining.
On the other side of the house, you’ll find three well-appointed bedrooms. The master bedroom offers a private retreat with its own bathroom and a walk-in closet, providing ample storage and a touch of luxury. Across from the master bedroom is bedroom two, conveniently located near a second bathroom and the laundry area.
Oakwood Oasis combines modern design with functional living spaces, making it an ideal home for both relaxation and everyday living.

















